Nyelv:
Kezdd el!
Eladó
Kiadó
Tulajdonos vagyok
Ingatlanos vagyok
Zoomlla-funkciók
Eladó ház Nagykáta 76m2
2760 Nagykáta
ID: 99929
28 M Ft (30 E Ft/m2)
Terület
929 m2
Hálószobák
3
Ingatlan adatok
Típus: Ház
Terület: 76 m2
Erkély / Terasz területe: 1705 m2
Hálószobák: 3
Építés éve: 20+ éve
Ár: 28 000 000 Ft
Ár/m2: 30 E Ft/m2
Emelet: 1+ emelet
Leírás
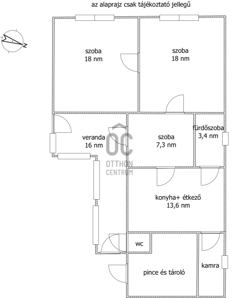
Eladó Nagykátán, felújítandó, vályog falazatú, 76 nm-s, családi ház, 1705 nm-s telekkel.
Az ingatlan 2 szoba, konyha, kamra, fürdőszoba, veranda és több melléképületből áll.
Villany (3*20 A), gáz és csatorna közművekkel ellátott. Vízellátása fúrt kútról (46 m ) hidroforról megoldott, az utcáról beköthető a vezetékes víz.
Fűtése gázkazán és vegyes t
...
+ Tovább olvasom
Lokáció
2760 Nagykáta