Nyelv:
Kezdd el!
Eladó
Kiadó
Tulajdonos vagyok
Ingatlanos vagyok
Zoomlla-funkciók
Eladó ház Szombathely 81m2
9700 Szombathely
ID: 99789
70.9 M Ft (227 E Ft/m2)
Terület
313 m2
Hálószobák
4
Ingatlan adatok
Típus: Ház
Terület: 81 m2
Erkély / Terasz területe: 463 m2
Hálószobák: 4
Építés éve: Max. 5 éve
Ár: 70 900 000 Ft
Ár/m2: 227 E Ft/m2
Emelet: 1+ emelet
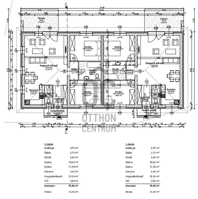
Leírás
Plató I. projekt
Szombathelyen új építésű ikerház eladó!

Új építésű ikerház eladó Szombathelyen, az Oladi városrészen.
Egy modern ikerház egyik felét kínálom, amelyet 2026-ban vehet birtokba.

A 80,67 négyzetméteres lakótér minden részlete átgondolt: három kényelmes hálószoba, egy tágas, világos nappali, amely egy légtérben helyezkedik el a konyh
...
+ Tovább olvasom
Lokáció
9700 Szombathely