Nyelv:
Kezdd el!
Eladó
Kiadó
Tulajdonos vagyok
Ingatlanos vagyok
Zoomlla-funkciók
Eladó ház Szombathely 91m2
9700 Szombathely
ID: 99788
86.9 M Ft (182 E Ft/m2)
Terület
478 m2
Hálószobák
5
Ingatlan adatok
Típus: Ház
Terület: 91 m2
Erkély / Terasz területe: 774 m2
Hálószobák: 5
Építés éve: Max. 5 éve
Ár: 86 900 000 Ft
Ár/m2: 182 E Ft/m2
Emelet: 1+ emelet
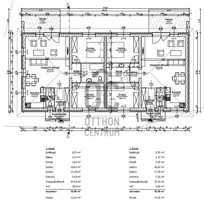
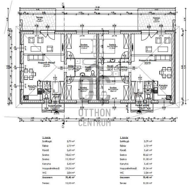
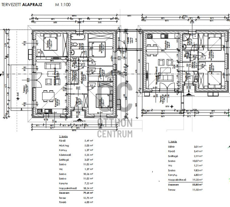
Leírás
Plató I. projekt
Szombathelyen új építésű ikerház eladó!

Új építésű ikerház eladó Szombathelyen, az Oladi városrészen.
Egy modern ikerház egyik felét kínálom, amelyet 2026-ban vehet birtokba.

A 90,73 négyzetméteres lakótér minden részlete átgondolt: négy kényelmes hálószoba, egy tágas, világos nappali, amely egy légtérben helyezkedik el a konyha-
...
+ Tovább olvasom
Lokáció
9700 Szombathely