Nyelv:
Kezdd el!
Eladó
Kiadó
Tulajdonos vagyok
Ingatlanos vagyok
Zoomlla-funkciók
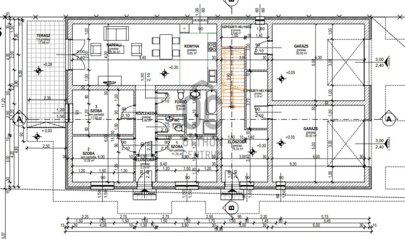
Eladó ház Debrecen 230m2
4033 Debrecen
ID: 99670
250 M Ft (362 E Ft/m2)
Terület
690 m2
Hálószobák
9
Ingatlan adatok
Típus: Ház
Terület: 230 m2
Erkély / Terasz területe: 920 m2
Hálószobák: 9
Építés éve: Max. 5 éve
Ár: 250 000 000 Ft
Ár/m2: 362 E Ft/m2
Emelet: 1+ emelet
Leírás
???? ELADÓ PRÉMIUM CSALÁDI HÁZ DEBRECENBEN – KÉTGENERÁCIÓS OTTHONNAK IS TÖKÉLETES!

Debrecen csendes, családi házas övezetében, a közkedvelt Hőforrás városrészben kínálunk eladásra egy kivételes minőségben megépített, modern, új építésű családi házat.

Az ingatlan két, teljes értékű, különálló lakóegységet foglal magában, így ideális választás nagy
...
+ Tovább olvasom
Lokáció
4033 Debrecen