Nyelv:
Kezdd el!
Eladó
Kiadó
Tulajdonos vagyok
Ingatlanos vagyok
Zoomlla-funkciók
Eladó ház Vác Alsóváros 96m2
2600 Vác
ID: 99547
99.9 M Ft (252 E Ft/m2)
Terület
396 m2
Hálószobák
4
Ingatlan adatok
Típus: Ház
Terület: 96 m2
Erkély / Terasz területe: 600 m2
Hálószobák: 4
Építés éve: Max. 5 éve
Ár: 99 900 000 Ft
Ár/m2: 252 E Ft/m2
Emelet: 1+ emelet
Leírás
VÁCON a KASTÉLYLIGET LAKÓPARKBAN kínálunk eladásra ÚJ ÉPÍTÉSŰ ingatlanokat!

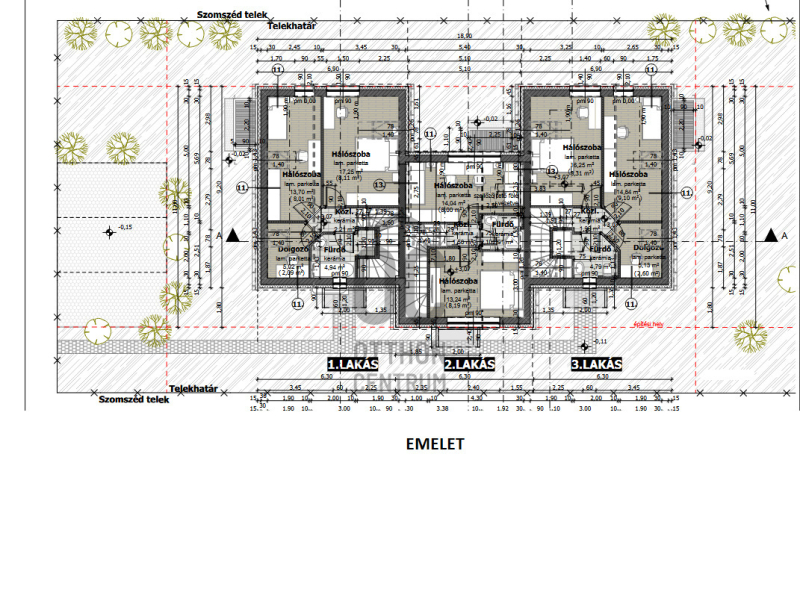
A háromlakásos sorház két szélső lakása 96-96 nm, a középső lakás pedig 73 nm alapterületű.
Valamennyi lakás belső kétszintes tetőtér beépítéses, mindkét szinten 1-1 fürdőszobával rendelkezik.
Minden lakáshoz külön bejárat, saját használatú változó nagyságú körbekerített k
...
+ Tovább olvasom
Lokáció
2600 Vác