Nyelv:
Kezdd el!
Eladó
Kiadó
Tulajdonos vagyok
Ingatlanos vagyok
Zoomlla-funkciók
Eladó lakás Simontornya 85m2
7081 Simontornya
ID: 99482
26.5 M Ft (312 E Ft/m2)
Terület
85 m2
Hálószobák
3
Ingatlan adatok
Típus: Lakás
Terület: 85 m2
Hálószobák: 3
Építés éve: 20+ éve
Ár: 26 500 000 Ft
Ár/m2: 312 E Ft/m2
Emelet: Felső szint
Kilátás az ingatlanból: Város
Leírás
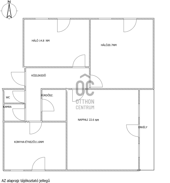
Tolna vármegyében , Simontornyán, egy kedves Sió parti kisvárosban, első emeleti tégla lakás eladó.
A lakás csendes utcában, de mégis központhoz közel, fekszik
A 85nm-es, első emeleti lakásban van 3 nagy méretű szoba, étkező-konyha, kamra, fürdőszoba, külön wc, egy nagyobb méretű erkély. A lakáshoz garázs is tartozik, a társasház udvarán.
A lakás m
...
+ Tovább olvasom
Jellemzők
  • Erkély
Lokáció
7081 Simontornya