Nyelv:
Kezdd el!
Eladó
Kiadó
Tulajdonos vagyok
Ingatlanos vagyok
Zoomlla-funkciók
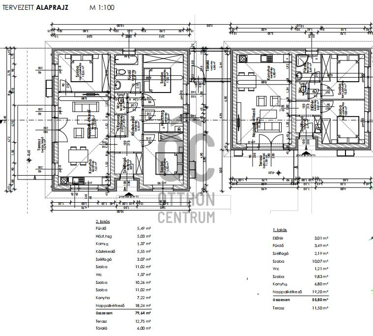
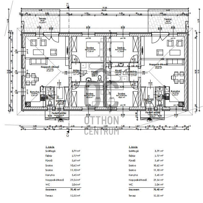
Eladó ház Szombathely 79m2
9700 Szombathely
ID: 99256
73.9 M Ft (197 E Ft/m2)
Terület
375 m2
Hálószobák
4
Ingatlan adatok
Típus: Ház
Terület: 79 m2
Erkély / Terasz területe: 592 m2
Hálószobák: 4
Építés éve: Max. 5 éve
Ár: 73 900 000 Ft
Ár/m2: 197 E Ft/m2
Emelet: 1+ emelet
Leírás
Szombathelyen új építésű ikerház eladó!

Új építésű ikerház eladó Szombathelyen, az Oladi városrészen.
Egy modern ikerház egyik felét kínálom, amelyet 2026-ban vehet birtokba.

A 79,35 négyzetméteres lakótér minden részlete átgondolt: három kényelmes hálószoba, egy tágas, világos nappali, amely egy légtérben helyezkedik el a konyha-étkezővel. Innen
...
+ Tovább olvasom
Lokáció
9700 Szombathely