Nyelv:
Kezdd el!
Eladó
Kiadó
Tulajdonos vagyok
Ingatlanos vagyok
Zoomlla-funkciók
Eladó lakás Budapest III. 190m2
1037 Budapest
ID: 99255
375 M Ft (2 M Ft/m2)
Terület
190 m2
Hálószobák
4
Ingatlan adatok
Típus: Lakás
Terület: 190 m2
Hálószobák: 4
Építés éve: Max. 5 éve
Ár: 375 000 000 Ft
Ár/m2: 2 M Ft/m2
Emelet: Felső szint
Kilátás az ingatlanból: Park
Leírás
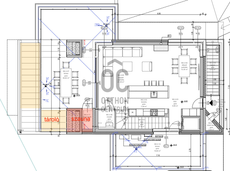
Modern ikerházi lakás Testvérhegyen – panorámás kilátással

A III. kerület, Testvérhegy egyik csendes utcájában kínálunk eladásra egy panorámás telken épülő, egyedileg tervezett ikerházi lakást.
Az ingatlan átgondolt kialakítással, korszerű műszaki megoldásokkal és letisztult formavilággal készül.

Nappalijában közel 3 méteres belmagasság gondosko
...
+ Tovább olvasom
Lokáció
1037 Budapest