Nyelv:
Kezdd el!
Eladó
Kiadó
Tulajdonos vagyok
Ingatlanos vagyok
Zoomlla-funkciók
Eladó lakás Budapest XIII. Angyalföld ..
1138 Budapest
ID: 99217
76.8 M Ft (1.5 M Ft/m2)
Terület
50 m2
Hálószobák
2+1
Ingatlan adatok
Típus: Lakás
Terület: 50 m2
Hálószobák: 2+1
Építés éve: 20+ éve
Ár: 76 800 000 Ft
Ár/m2: 1.5 M Ft/m2
Emelet: Felső szint
Leírás
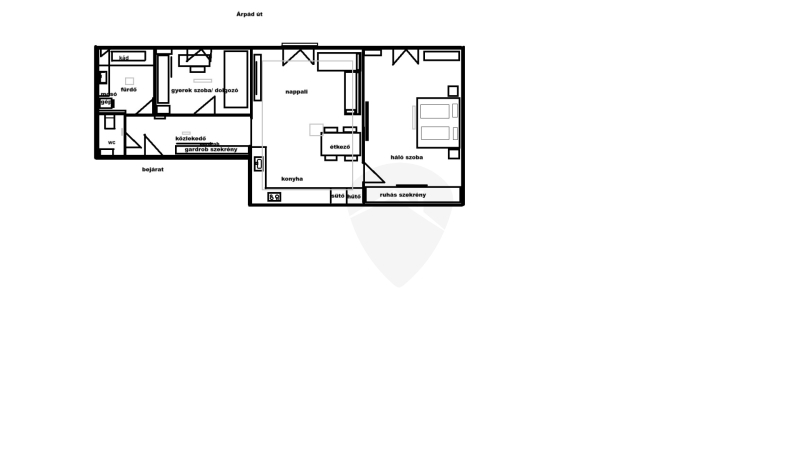
IV. kerület Árpád úton található a két kerület határán, Újpest-Városkapu metró közelében, csendes mellékutcában eladó egy teljeskörűen felújított, 50 m²-es, nappali + 2 szobás, világos lakás.

Amerikai konyhás nappali új IKEA bútorokkal, külön fürdő és WC, franciaerkély részleges Dunai kilátással. Inverteres klíma, 3 rétegű ablakok, modern burkola
...
+ Tovább olvasom
Jellemzők
  • Erkély
Lokáció
1138 Budapest