Nyelv:
Kezdd el!
Eladó
Kiadó
Tulajdonos vagyok
Ingatlanos vagyok
Zoomlla-funkciók
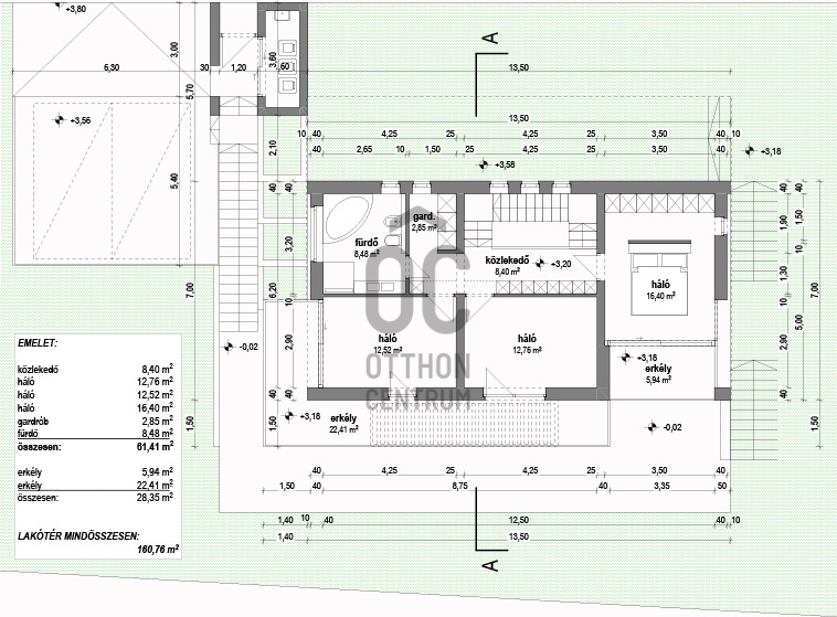
Eladó ház Szentendre 230m2
2000 Szentendre
ID: 98880
198 M Ft (277 E Ft/m2)
Terület
715 m2
Hálószobák
5
Ingatlan adatok
Típus: Ház
Terület: 230 m2
Erkély / Terasz területe: 970 m2
Hálószobák: 5
Építés éve: Max. 5 éve
Ár: 197 950 000 Ft
Ár/m2: 277 E Ft/m2
Emelet: 1+ emelet
Leírás
Szentendrén örökpanorámás ház igényei szerint!
KIHAGYHATATLAN AJÁNLAT, ÖRÖKPANORÁMA!!!

Szentendrén elvehetetlen örökpanorámás, minden igényt kielégítő villaépület várja új tulajdonosát, közvetlenül a beruházótól. A lélegzetelállító panorámát személyesen meg kell nézni, beleszeretős!

970 nm-es, telken helyezkedik el az ingatlan, igény szerint boro
...
+ Tovább olvasom
Lokáció
2000 Szentendre