Nyelv:
Kezdd el!
Eladó
Kiadó
Tulajdonos vagyok
Ingatlanos vagyok
Zoomlla-funkciók
Eladó lakás Budapest II. Felhévíz II. ..
1023 Budapest
ID: 98736
235 M Ft (1.9 M Ft/m2)
Terület
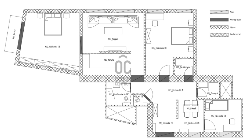
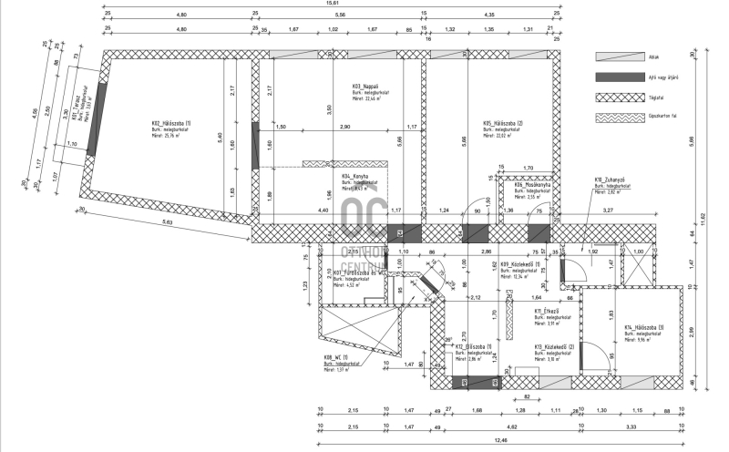
122 m2
Hálószobák
4
Ingatlan adatok
Típus: Lakás
Terület: 122 m2
Hálószobák: 4
Építés éve: 20+ éve
Ár: 235 000 000 Ft
Ár/m2: 1.9 M Ft/m2
Emelet: Felső szint
Kilátás az ingatlanból: Város
Leírás
Világos, frissen felújított otthon tágas terekkel és kifinomult részletekkel. Üdv itthon!

LOKÁCIÓ
Budán, a Duna-part mentén húzódó Árpád Fejedelem útja egészen különleges városi szövet: egyszerre dinamikus és meglepően emberléptékű. A Margit híd közelsége és a kiváló közlekedési kapcsolatok (4-6-os villamos, HÉV, számos buszjárat) gondoskodnak ró
...
+ Tovább olvasom
Jellemzők
  • Erkély
Lokáció
1023 Budapest