Nyelv:
Kezdd el!
Eladó
Kiadó
Tulajdonos vagyok
Ingatlanos vagyok
Zoomlla-funkciók
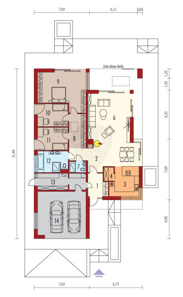
Eladó ház Komárom 196m2
2900 Komárom
ID: 98626
143.7 M Ft (276 E Ft/m2)
Terület
521 m2
Hálószobák
3
Ingatlan adatok
Típus: Ház
Terület: 196 m2
Erkély / Terasz területe: 650 m2
Hálószobák: 3
Építés éve: Max. 5 éve
Ár: 143 656 000 Ft
Ár/m2: 276 E Ft/m2
Emelet: 1+ emelet
Kilátás az ingatlanból: Belső udvar
Leírás
Kedves Érdeklődő!

Örömmel mutatjuk be ezt a modern, újépítésű ingatlant, amely egy biztonságos, barátságos és nyugodt környezetben várja leendő tulajdonosát.

**Elhelyezkedés:**

Az ingatlan Komárom központi részén, a Térffy Gyula utcában található. Az utca kiváló elhelyezkedése révén könnyedén megközelíthető a város főbb útvonalairól, mind gyalog
...
+ Tovább olvasom
Lokáció
2900 Komárom