Nyelv:
Kezdd el!
Eladó
Kiadó
Tulajdonos vagyok
Ingatlanos vagyok
Zoomlla-funkciók
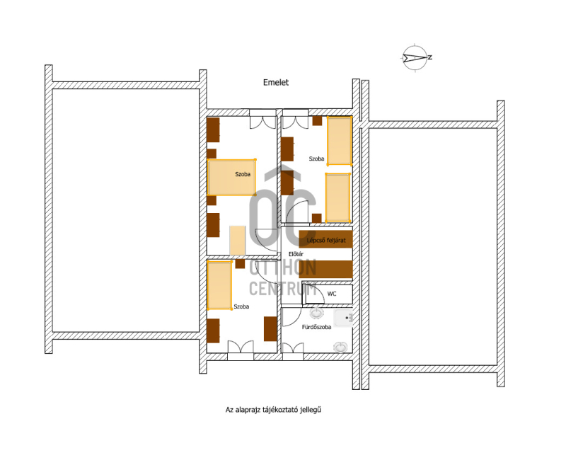
Eladó ház Tiszafüred 120m2
5350 Tiszafüred
ID: 98195
77 M Ft (318 E Ft/m2)
Terület
242 m2
Hálószobák
4
Ingatlan adatok
Típus: Ház
Terület: 120 m2
Erkély / Terasz területe: 244 m2
Hálószobák: 4
Építés éve: 20+ éve
Ár: 77 000 000 Ft
Ár/m2: 318 E Ft/m2
Emelet: 1+ emelet
Leírás
Az ingatlan Jász-Nagykun-Szolnok vármegye egyik legdinamikusabban fejlődő városában, Tiszafüreden található, közel a szabadstrandhoz, de mégis csendes környéken.
-A 120 m²-es, háromszintes lakás egy hétlakásos sorház része, saját kerttel.
-A ház bejáratát rózsabokor díszíti, de új tulajdonosa kedve szerint alakíthatja az előkertet.
-Az otthon háro
...
+ Tovább olvasom
Lokáció
5350 Tiszafüred