Nyelv:
Kezdd el!
Eladó
Kiadó
Tulajdonos vagyok
Ingatlanos vagyok
Zoomlla-funkciók
Eladó ház Budapest XIII. Angyalföld 48..
1135 Budapest, Csata utca
ID: 98119
57 M Ft (1.2 M Ft/m2)
Terület
48 m2
Hálószobák
0
Ingatlan adatok
Típus:
Terület: 48 m2
Hálószobák: 0
Építés éve: Max. 10 éve
Ár: 57 000 000 Ft
Ár/m2: 1.2 M Ft/m2
Emelet: Felső szint
Leírás
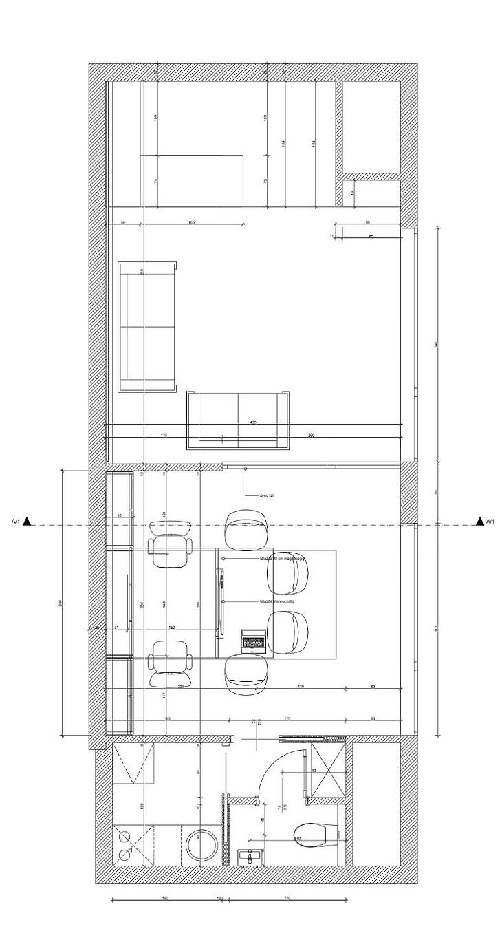
XIII. kerületben a Csata utcában eladó utcai bejáratos, üveg kirakatos 48 m2-es üzlethelyiség kocsibeállóval és tárolóval eladó.



Elosztás: Konyha, Mosdó, fogyadó tér, tároló helyiség.



Az üzlethelyiséghez opcionálisan megvásárolható egy külső tároló és egy kocsibeálló.



A beálló ára 6.500.000 Ft

Tároló ára: 3.000.000 Ft



Az üzlethelyiség
...
+ Tovább olvasom
Lokáció
1135 Budapest, Csata utca