Nyelv:
Kezdd el!
Eladó
Kiadó
Tulajdonos vagyok
Ingatlanos vagyok
Zoomlla-funkciók
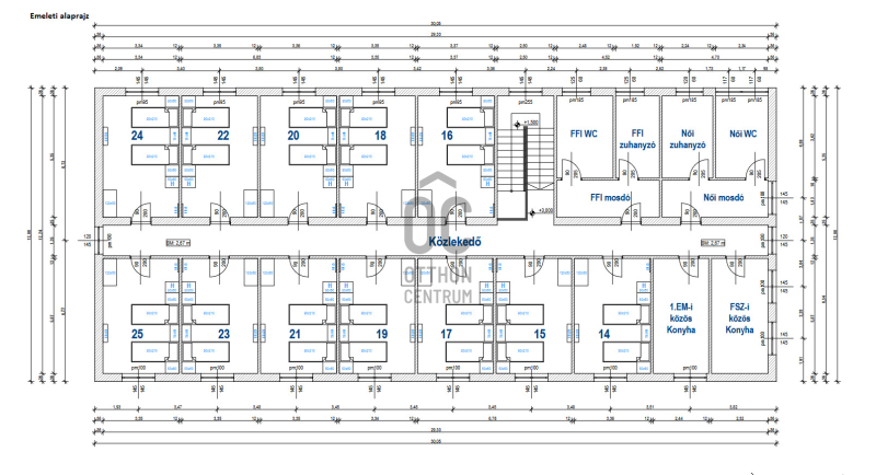
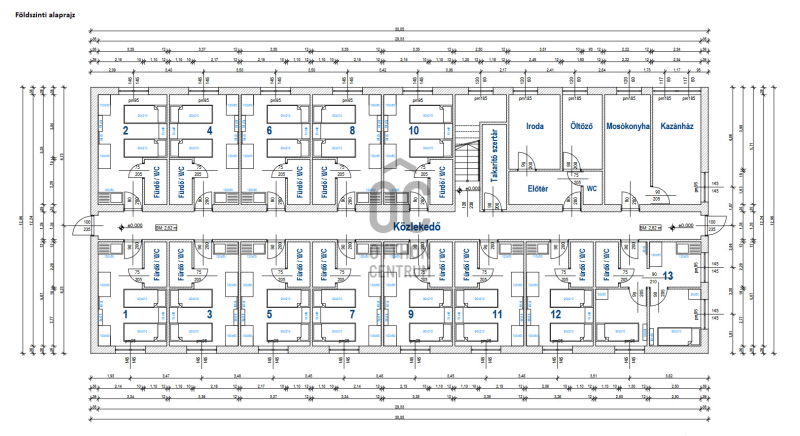
Eladó ház Százhalombatta 650m2
2440 Százhalombatta
ID: 90266
370 M Ft (569 E Ft/m2)
Terület
650 m2
Hálószobák
0
Ingatlan adatok
Típus:
Terület: 650 m2
Hálószobák: 0
Építés éve: 20+ éve
Ár: 370 000 000 Ft
Ár/m2: 569 E Ft/m2
Emelet: Felső szint
Leírás
Befektetési célú ingatlanvásárlók figyelmébe ajánljuk ezt a kivételes lehetőséget, amely Százhalombatta ipari területén található.

Díjmentes, bankfüggetlen hiteltanácsadással támogatjuk vevő ügyfeleinket a számukra legelőnyösebb finanszírozási döntések meghozatalában. Opcionálisan igénybe vehető kiegészítő szolgáltatásainkkal – mint ügyvédi közrem
...
+ Tovább olvasom
Lokáció
2440 Százhalombatta