Nyelv:
Kezdd el!
Eladó
Kiadó
Tulajdonos vagyok
Ingatlanos vagyok
Zoomlla-funkciók
Eladó ház Budapest V. Bank negyed 285m..
1054 Budapest
ID: 89566
580 M Ft (2 M Ft/m2)
Terület
285 m2
Hálószobák
0
Ingatlan adatok
Típus:
Terület: 285 m2
Hálószobák: 0
Építés éve: 20+ éve
Ár: 580 000 000 Ft
Ár/m2: 2 M Ft/m2
Emelet: Felső szint
Leírás
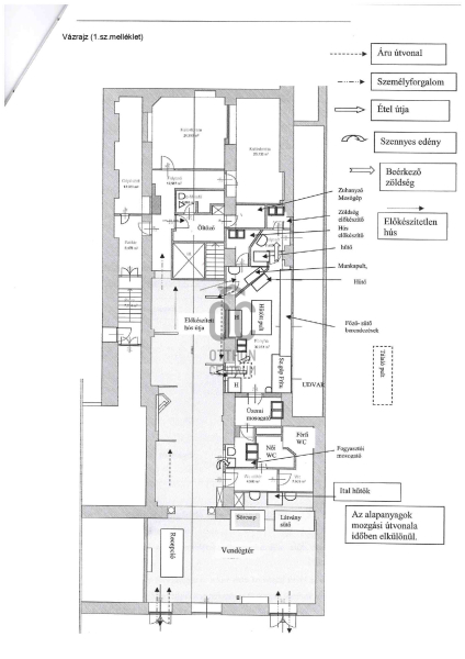
Ha egy garantált bevétellel rendelkező befektetést keres, ne menjen tovább! Budapest egyik legkeresettebb üzleti környezetében, a folyamatosan fejlődő Bank negyedben kínálunk eladásra egy kiváló állapotú vendéglátóipari egységet, amely STABIL BÉRLŐVEL együtt eladó.

Ez az exkluzív 285 négyzetméteres ingatlan már most is jövedelmező:
- Jelenlegi b
...
+ Tovább olvasom
Lokáció
1054 Budapest