Nyelv:
Kezdd el!
Eladó
Kiadó
Tulajdonos vagyok
Ingatlanos vagyok
Zoomlla-funkciók
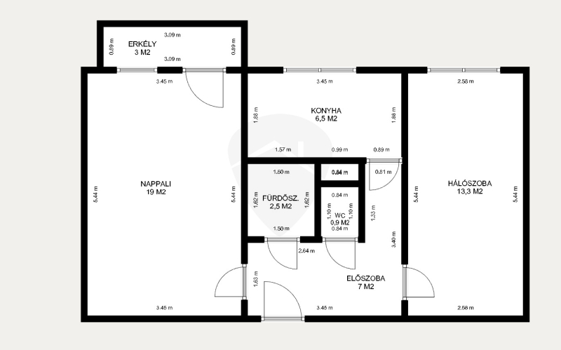
Eladó lakás Oroszlány 50m2
2840 Oroszlány
ID: 86285
29 M Ft (580 E Ft/m2)
Terület
50 m2
Hálószobák
2
Ingatlan adatok
Típus: Lakás
Terület: 50 m2
Hálószobák: 2
Építés éve: 20+ éve
Ár: 28 999 000 Ft
Ár/m2: 580 E Ft/m2
Emelet: Felső szint
Kilátás az ingatlanból: Város
Leírás
Ez az 50 m²-es, gondosan felújított lakás a Bánki Donát utcában nemcsak egy ingatlan, hanem egy lehetőség arra, hogy otthonra találj egy barátságos, modern és csendes környezetben – akár saját részre, akár befektetési célból keresel.

Az elmúlt évek során a lakás szinte teljesen megújult: a falak friss festést kaptak, új burkolatok kerültek a helyü
...
+ Tovább olvasom
Jellemzők
  • Erkély
Lokáció
2840 Oroszlány