Nyelv:
Kezdd el!
Eladó
Kiadó
Tulajdonos vagyok
Ingatlanos vagyok
Zoomlla-funkciók
Eladó ház Budapest XVI. Rákosszentmihá..
1161 Budapest
ID: 84868
149.9 M Ft (980 E Ft/m2)
Terület
153 m2
Hálószobák
0
Ingatlan adatok
Típus:
Terület: 153 m2
Hálószobák: 0
Építés éve: 20+ éve
Ár: 149 900 000 Ft
Ár/m2: 980 E Ft/m2
Emelet: Felső szint
Leírás
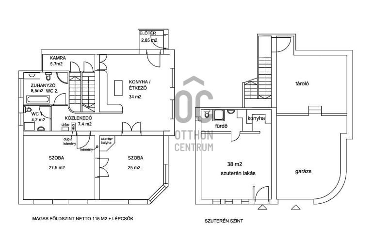
ÜZLETI CÉLRA KIVÁLÓAN HASZNOSÍTHATÓ HÁZ ELADÓ A 16. KERÜLETBEN

Alsó szinten:
39 nm-es (jelenleg lakásnak használt) helyiség vizesblokkal
két állásos garázs
műhely (27 nm)
fedett autóbeálló 3 autónak
nyitott autóbeállók
ipari áram bevezetve, fúrt kút

Magasföldszinten:
összesen 115 nm, jó állapotú, alakítható lakó-/irodatér
jelenleg 3 nagy helyisé
...
+ Tovább olvasom
Lokáció
1161 Budapest