Nyelv:
Kezdd el!
Eladó
Kiadó
Tulajdonos vagyok
Ingatlanos vagyok
Zoomlla-funkciók
Eladó ház Nemesvita 32m2
8311 Nemesvita
ID: 84704
16.9 M Ft (33 E Ft/m2)
Terület
519 m2
Hálószobák
1
Ingatlan adatok
Típus:
Terület: 32 m2
Erkély / Terasz területe: 973 m2
Hálószobák: 1
Építés éve: 20+ éve
Ár: 16 900 000 Ft
Ár/m2: 33 E Ft/m2
Emelet: 1+ emelet
Leírás
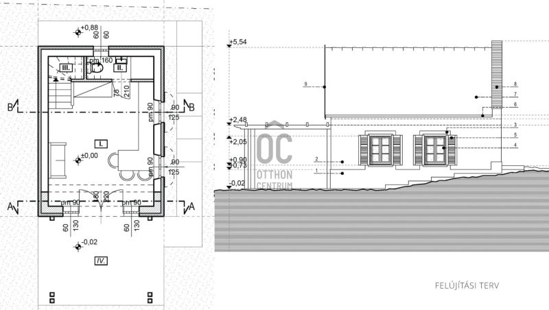
Erdőkkel körülölelt, nyugodt , csendes környezetben ajánlom figyelmébe, ezt a jelenleg 31.6nm hasznos alapterülettel rendelkező kis felújítandó házikót,
mely 973 nm-es, gyümölcsfákkal (szilva, barack, alma, füge) beültetett telken fekszik.

Az épület alsó szintjén jelenleg 3 kisebb helyiség található, míg ez emeleten egy hálószoba és egy kis előtér
...
+ Tovább olvasom
Lokáció
8311 Nemesvita