Nyelv:
Kezdd el!
Eladó
Kiadó
Tulajdonos vagyok
Ingatlanos vagyok
Zoomlla-funkciók
Eladó ház Pócsmegyer 80m2
2017 Pócsmegyer
ID: 84171
38.9 M Ft (111 E Ft/m2)
Terület
350 m2
Hálószobák
2
Ingatlan adatok
Típus:
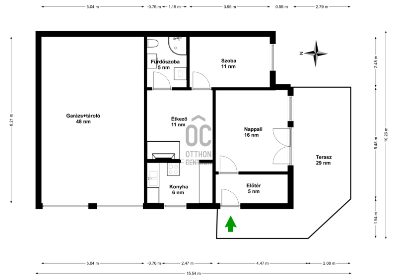
Terület: 80 m2
Erkély / Terasz területe: 540 m2
Hálószobák: 2
Építés éve: 20+ éve
Ár: 38 900 000 Ft
Ár/m2: 111 E Ft/m2
Emelet: 1+ emelet
Leírás
Szentendrei-szigeten, csodás környezetben ELADÓ egy remek adottságú, azonnal birtokba vehető nyaraló!

Surányban, a Szentendrei-sziget egyik kedvelt részén, a Nárcisz és Körte utca sarkán elhelyezkedő 540 nm-es telken eladó egy hangulatos, karbantartott, állandó lakhatásra is kiválóan alkalmas, körbenapozott ház!

Az eredeti, tégla építésű ház a ’7
...
+ Tovább olvasom
Lokáció
2017 Pócsmegyer