Nyelv:
Kezdd el!
Eladó
Kiadó
Tulajdonos vagyok
Ingatlanos vagyok
Zoomlla-funkciók
Eladó ház Budapest I. Víziváros I. ker..
1015 Budapest
ID: 83017
765 M Ft (906 E Ft/m2)
Terület
844 m2
Hálószobák
0
Ingatlan adatok
Típus:
Terület: 844 m2
Hálószobák: 0
Építés éve: 20+ éve
Ár: 764 959 000 Ft
Ár/m2: 906 E Ft/m2
Emelet: Felső szint
Leírás
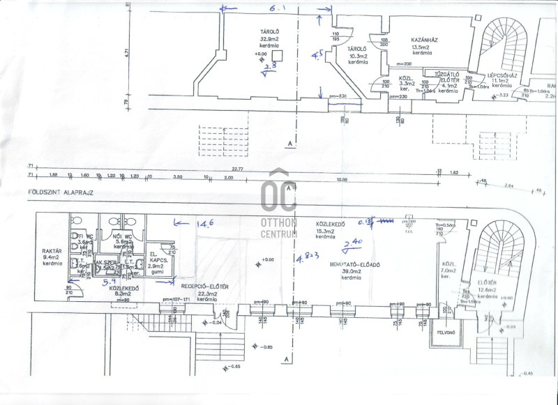
Kivételes lehetőséget kínálunk Budapest 01. kerületében, a Víziváros szívében. 844 négyzetméteres alapterületű teljes épület, mely ideális választás lehet cégközpontnak, egészségügyi intézménynek, hostelnek, iskolának vagy irodáknak. Sőt! A hatályos övezeti besorolás értelmében (Vt-V/I/03) akár lakóingatlan létesítésére is alkalmas, a ház jelenlegi...
+ Tovább olvasom
Lokáció
1015 Budapest