Nyelv:
Kezdd el!
Eladó
Kiadó
Tulajdonos vagyok
Ingatlanos vagyok
Zoomlla-funkciók
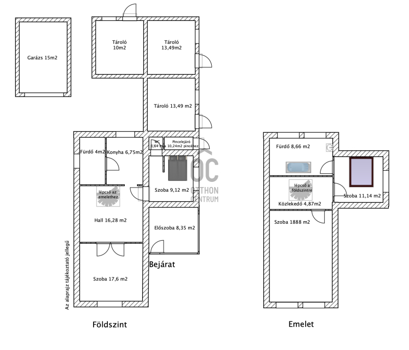
Eladó ház Budapest XXII. Budafok 105m2
1225 Budapest
ID: 82916
108 M Ft (232 E Ft/m2)
Terület
465 m2
Hálószobák
4
Ingatlan adatok
Típus: Ház
Terület: 105 m2
Erkély / Terasz területe: 720 m2
Hálószobák: 4
Építés éve: 20+ éve
Ár: 107 990 000 Ft
Ár/m2: 232 E Ft/m2
Emelet: 1+ emelet
Leírás
Budafok, Budapest 22. kerületének egyik csendes utcájában, kertvárosias övezetben található ez a két szintes, világos családi ház.


- NAPELEM 3,4 KW-os , villany: 1 fázis 32 A
- GARÁZS 15m2, 1 FEDETT AUTÓBEÁLLÓ, több nyitott beállási lehetőség
- Bramac cseréptető, 30 cm vastag téglafal + 5cm SZIGETELÉS
- 1960 épült és 2006-ban a tetőtér lett beépí
...
+ Tovább olvasom
Lokáció
1225 Budapest