Nyelv:
Kezdd el!
Eladó
Kiadó
Tulajdonos vagyok
Ingatlanos vagyok
Zoomlla-funkciók
Eladó ház Debrecen Belváros 960m2
4024 Debrecen
ID: 82297
500 M Ft (521 E Ft/m2)
Terület
960 m2
Hálószobák
0
Ingatlan adatok
Típus:
Terület: 960 m2
Hálószobák: 0
Építés éve: 20+ éve
Ár: 500 000 000 Ft
Ár/m2: 521 E Ft/m2
Emelet: Felső szint
Leírás
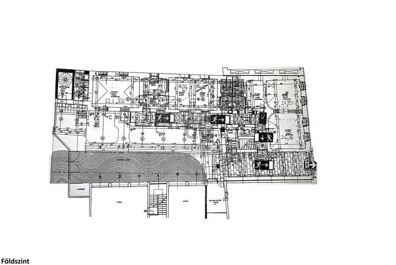
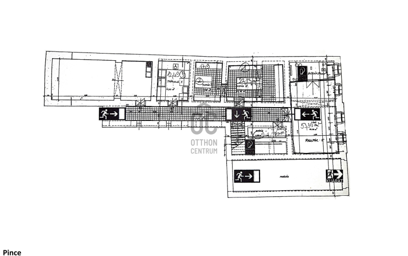
Debrecen Szívében irodaház eladó!

KIVÁLÓ BEFEKTETÉSI LEHETŐSÉG DEBRECEN BELVÁROSÁBAN!!

Debrecen belvárosában eladó egy 960 nm-es irodaház.
Az ingatlan szintenként 240 nm. Központi elhelyezkedésének köszönhetően számos lehetőség rejlik benne, ezenkívül rendkívüli előnye, hogy könnyen megközelíthető. Iroda található, melyeket jelenleg is folyamato
...
+ Tovább olvasom
Lokáció
4024 Debrecen