Nyelv:
Kezdd el!
Eladó
Kiadó
Tulajdonos vagyok
Ingatlanos vagyok
Zoomlla-funkciók
Eladó ház Üröm 3488m2
2096 Üröm
ID: 82158
156.7 M Ft (45 E Ft/m2)
Terület
3488 m2
Hálószobák
0
Ingatlan adatok
Típus:
Terület: 3488 m2
Hálószobák: 0
Építés éve: 20+ éve
Ár: 156 693 000 Ft
Ár/m2: 45 E Ft/m2
Emelet: Felső szint
Leírás
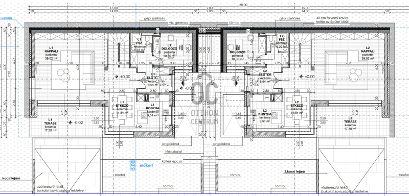
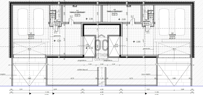
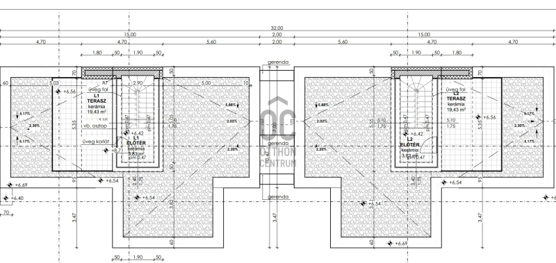
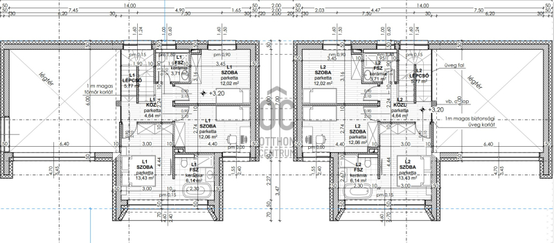
ÜRÖMI ÉPÍTÉSI TELEK 2 X 2 LAKÁSOS VÁROSI PANORÁMÁS TÁRSASHÁZ TELJES TERVDOKUMENTÁCIÓJÁVAL

ÜRÖM LEGÉRTÉKESEBB RÉSZÉN, NAGYÉRTÉKŰ LUXUSINGATLANOK KÖZVETLEN KÖRNYEZETÉBEN kínálunk eladásra, egy 3488 m2-es (970 négyszögöl), JÓ BEFOGLALÓ MÉRETEKKEL RENDELKEZŐ, 30%-os BEÉPÍTHETŐSÉGŰ ÉPÍTÉSI TELKET, 2 X 2 LAKÁSOS VÁROSI PANORÁMÁS (többek között a GELLÉR
...
+ Tovább olvasom
Lokáció
2096 Üröm