Nyelv:
Kezdd el!
Eladó
Kiadó
Tulajdonos vagyok
Ingatlanos vagyok
Zoomlla-funkciók
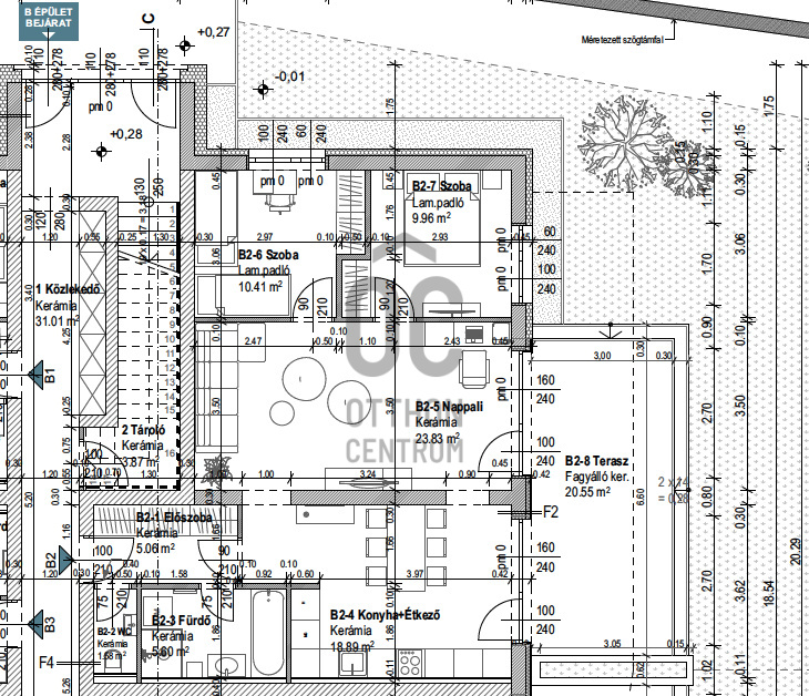
Eladó lakás Alsóörs 86m2
8226 Alsóörs
ID: 81914
114.4 M Ft (1.3 M Ft/m2)
Terület
86 m2
Hálószobák
3
Ingatlan adatok
Típus: Lakás
Terület: 86 m2
Hálószobák: 3
Építés éve: Max. 5 éve
Ár: 114 400 000 Ft
Ár/m2: 1.3 M Ft/m2
Emelet: 1+ emelet
Kilátás az ingatlanból: Belső udvar
Leírás
Balaton északi partjának kedvelt üdülőhelyén kínálunk eladásra újépítésű, prémium lakásokat.

A település kiváló infrastruktúrával, rendezett stranddal és kikötővel rendelkezik. A lakások mindössze néhány perc sétára találhatók a Balaton-parttól.

A két épületből álló, összesen 26 lakásos exkluzív projekt modern építészeti és műszaki megoldásokkal
...
+ Tovább olvasom
Lokáció
8226 Alsóörs