Nyelv:
Kezdd el!
Eladó
Kiadó
Tulajdonos vagyok
Ingatlanos vagyok
Zoomlla-funkciók
Eladó lakás Budapest XV. Rákospalota 4..
1153 Budapest
ID: 81879
44.8 M Ft (996 E Ft/m2)
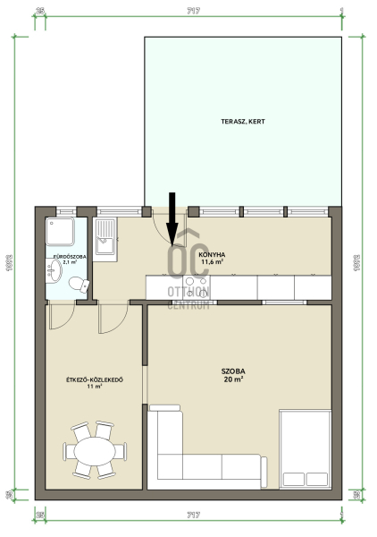
Terület
45 m2
Hálószobák
2
Ingatlan adatok
Típus: Lakás
Terület: 45 m2
Hálószobák: 2
Építés éve: 20+ éve
Ár: 44 800 000 Ft
Ár/m2: 996 E Ft/m2
Emelet: 1+ emelet
Kilátás az ingatlanból: Belső udvar
Leírás
Jó állapotú, részben felújított, kertkapcsolatos társasházi lakás, alacsony rezsivel!

A lakás egy 11 lakásos sorházban található, nettó 45 m²-es. Tartozik hozzá egy kb 15m²-es lekerített kertrész, amely hobbikertnek is, terasznak is tökéletes.

Egyedi saját mérőórákkal felszerelt, ezért fenntartása igen kedvező.
Az otthon elrendezése élhető, szob
...
+ Tovább olvasom
Lokáció
1153 Budapest