Nyelv:
Kezdd el!
Eladó
Kiadó
Tulajdonos vagyok
Ingatlanos vagyok
Zoomlla-funkciók
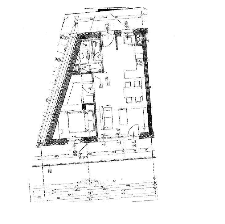
Eladó lakás Budapest XVII. Rákoskeresz..
1173 Budapest, Rákoskeresztúr
ID: 81642
54.5 M Ft (1.2 M Ft/m2)
Terület
44 m2
Hálószobák
1
Ingatlan adatok
Típus: Lakás
Terület: 44 m2
Hálószobák: 1
Építés éve: Max. 5 éve
Ár: 54 500 000 Ft
Ár/m2: 1.2 M Ft/m2
Emelet: 1+ emelet
Leírás
XVII. KERÜLETBEN: RÁKOSKERESZTÚRON, KASZÁLÓ UTCÁBAN, ELADÓ EGY ÚJSZERŰ ÁLLAPOTÚ 44 M²-ES, ELSŐ EMELETI TÉGLA LAKÁS, 15 M²-ES ERKÉLLYEL.



A LAKÁS JELLEMZŐI:



A nyílászárók 3 rétegű műanyagok, fedett redőnydobozt kaptak, a redőnyök elektromosak, a bejárati ajtó is cserélve lett.

A szoba és nappali laminált parkettával burkolt, a fürdős
...
+ Tovább olvasom
Lokáció
1173 Budapest, Rákoskeresztúr