Nyelv:
Kezdd el!
Eladó
Kiadó
Tulajdonos vagyok
Ingatlanos vagyok
Zoomlla-funkciók
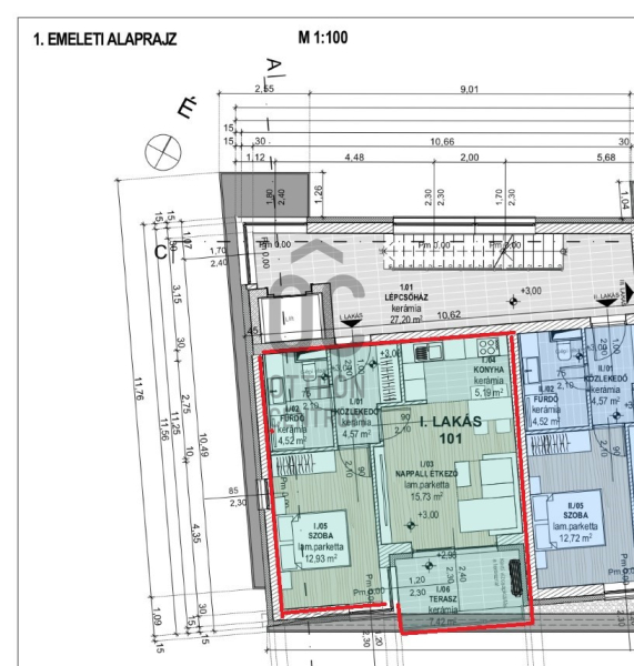
Eladó lakás Nemesbük 43m2
8371 Nemesbük
ID: 81557
64.7 M Ft (1.5 M Ft/m2)
Terület
43 m2
Hálószobák
2
Ingatlan adatok
Típus: Lakás
Terület: 43 m2
Hálószobák: 2
Építés éve: Max. 5 éve
Ár: 64 700 000 Ft
Ár/m2: 1.5 M Ft/m2
Emelet: Felső szint
Kilátás az ingatlanból: Park
Leírás
Fedezze fel ezt a kivételes lehetőséget, amely egy új, modern lakás formájában kínálja Önnek az otthon melegét Hévíztől és a Balaton partjától pár percre, a festői Nemesbükön, a természetközeli fekvésű Hill Gate Apartmanház részeként.

BEFEKTETŐK FIGYELEM! AZ INGATLAN BRUTTÓ HIRDETÉSI ÁRA 27% ÁFÁT TARTALMAZ, AMELY CÉGES VÁSÁRLÁS ESETÉN VISSZAIGÉN
...
+ Tovább olvasom
Lokáció
8371 Nemesbük