Nyelv:
Kezdd el!
Eladó
Kiadó
Tulajdonos vagyok
Ingatlanos vagyok
Zoomlla-funkciók
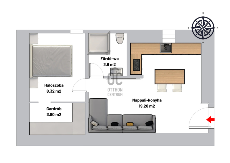
Eladó lakás Budapest XI. Kelenföld 34m..
1114 Budapest
ID: 81541
51.5 M Ft (1.5 M Ft/m2)
Terület
34 m2
Hálószobák
2
Ingatlan adatok
Típus: Lakás
Terület: 34 m2
Hálószobák: 2
Építés éve: 20+ éve
Ár: 51 500 000 Ft
Ár/m2: 1.5 M Ft/m2
Emelet: 1+ emelet
Kilátás az ingatlanból: Park
Leírás
XI. kerületben Újbuda-központtól pár perce keresi új tulajdonosát, egy 34 m2-es, amerikai konyhás nappali + egy hálószobás, műszakilag és esztétikailag 2021-ben felújított szuterén lakás! Ha lakberendező által kialakított, könnyen kiadható, hangulatos és modern kislakást keres kiváló környéken, ezt feltétlenül nézze meg!

Fontos infók a LAKÁSRÓL:
-
...
+ Tovább olvasom
Lokáció
1114 Budapest