Nyelv:
Kezdd el!
Eladó
Kiadó
Tulajdonos vagyok
Ingatlanos vagyok
Zoomlla-funkciók
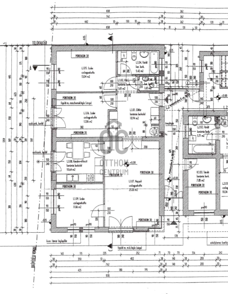
Eladó lakás Győr 93m2
9026 Győr
ID: 81252
89.9 M Ft (967 E Ft/m2)
Terület
93 m2
Hálószobák
3
Ingatlan adatok
Típus: Lakás
Terület: 93 m2
Hálószobák: 3
Építés éve: Max. 20 éve
Ár: 89 900 000 Ft
Ár/m2: 967 E Ft/m2
Emelet: 1+ emelet
Kilátás az ingatlanból: Park
Leírás
Győr-Révfalú egyik legkedveltebb utcájában, eladó egy 93 nm-es, jó beosztású, 3 szobás földszinti társasházi lakás , 3 franciaerkéllyel.
Két perc sétára, az ingatlannal szemben a vízpartot érjük el, ahol kellemesen lehet pihenni, szabadidőt eltölteni.

Fűtése, Valliant gázkazánnal megoldott. Nyílászárok műanyagok, amelyek redőnnyel szereltek.
Az i
...
+ Tovább olvasom
Lokáció
9026 Győr