Nyelv:
Kezdd el!
Eladó
Kiadó
Tulajdonos vagyok
Ingatlanos vagyok
Zoomlla-funkciók
Eladó lakás Budapest VI. Nagykörúton b..
1066 Budapest
ID: 80929
209 M Ft (2.1 M Ft/m2)
Terület
99 m2
Hálószobák
4
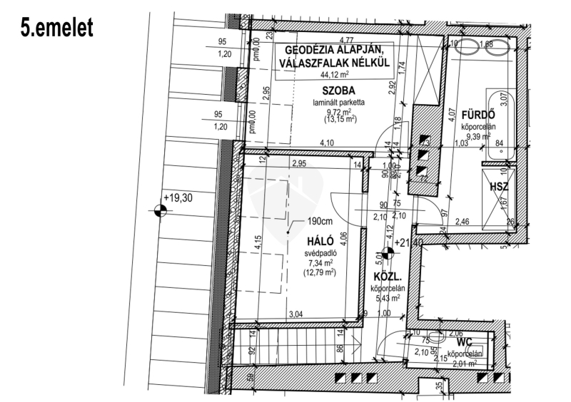
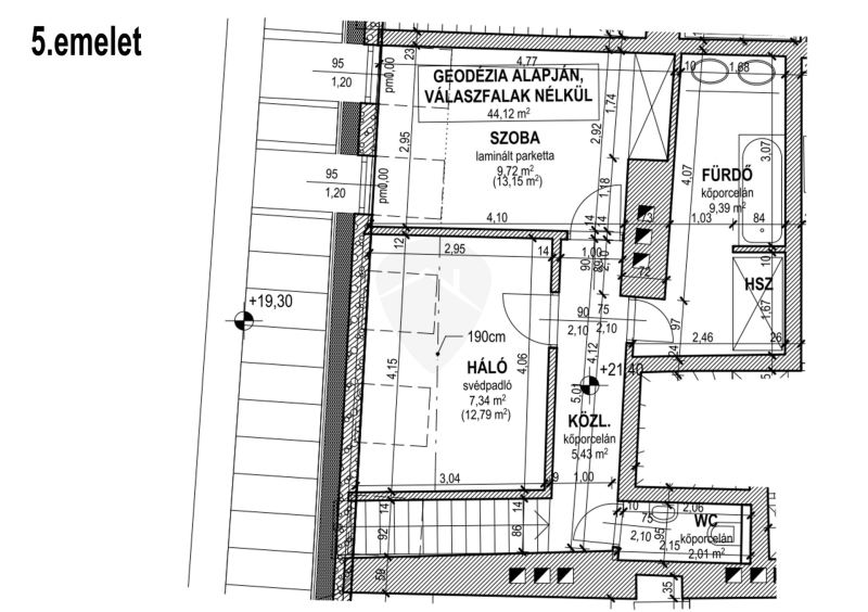
Ingatlan adatok
Típus: Lakás
Terület: 99 m2
Hálószobák: 4
Építés éve: Max. 5 éve
Ár: 209 000 000 Ft
Ár/m2: 2.1 M Ft/m2
Emelet: Felső szint
Kilátás az ingatlanból: Város
Leírás
Megvételre kínálunk egy azonnal költözhető, exkluzív duplex lakást Budapest VI. kerületének egyik legkedveltebb részén, a Jókai utca és a Lovag utca sarkán található patinás nagypolgári épület tetején.
Eladó egy minden igényt kielégítő, nappali + 3 hálószobás, bruttó 131 nm-es, teraszos duplex lakás.

Ez az otthon nemcsak elegáns, hanem rendkívül p
...
+ Tovább olvasom
Lokáció
1066 Budapest