Nyelv:
Kezdd el!
Eladó
Kiadó
Tulajdonos vagyok
Ingatlanos vagyok
Zoomlla-funkciók
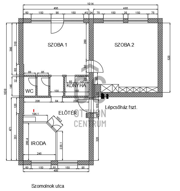
Eladó lakás Budapest III. Óbuda 79m2
1034 Budapest
ID: 80894
89 M Ft (1.1 M Ft/m2)
Terület
79 m2
Hálószobák
3
Ingatlan adatok
Típus: Lakás
Terület: 79 m2
Hálószobák: 3
Építés éve: 20+ éve
Ár: 89 000 000 Ft
Ár/m2: 1.1 M Ft/m2
Emelet: 1+ emelet
Kilátás az ingatlanból: Város
Leírás
Családosok figyelmébe ajánljuk ezt a kivételes lehetőséget Óbuda szívében, a Szomolnok utcában!
A lakás állapota jó, jelenlegi tulajdonosa irodaként használja, így a fürdőszoba kialakítása az új tulajdonosra vár, a gáz (cirkó) fűtés és a klíma biztosítja a kényelmet a forró nyári napokon és a hideg téli estéken egyaránt. A társasház belső kertje
...
+ Tovább olvasom
Lokáció
1034 Budapest