Nyelv:
Kezdd el!
Eladó
Kiadó
Tulajdonos vagyok
Ingatlanos vagyok
Zoomlla-funkciók
Eladó lakás Budapest V. Lipótváros 151..
1054 Budapest
ID: 80555
479 M Ft (3.2 M Ft/m2)
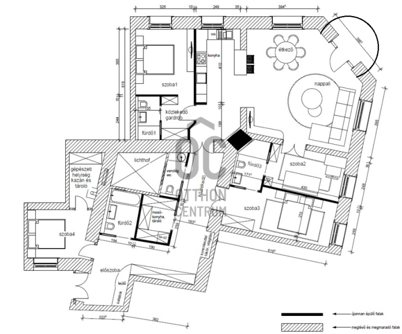
Terület
151 m2
Hálószobák
5
Ingatlan adatok
Típus: Lakás
Terület: 151 m2
Hálószobák: 5
Építés éve: 20+ éve
Ár: 479 000 000 Ft
Ár/m2: 3.2 M Ft/m2
Emelet: Felső szint
Kilátás az ingatlanból: Város
Leírás
Igazi ritkaság a piacon!

V. kerületben, Parlament mellett,
felújított, liftes ház, legfelső emeletén,
151 m2-es sarok lakás, terasszal, parlamenti kilátással eladó.

A historizáló ház homlokzatát pár éve kívül - belül felújították,
a külső homlokzat korabeli ornamentikai elemeit magas minőségben restaurálták.

A lakás a legfelső, 4. emeleten tal
...
+ Tovább olvasom
Lokáció
1054 Budapest