Nyelv:
Kezdd el!
Eladó
Kiadó
Tulajdonos vagyok
Ingatlanos vagyok
Zoomlla-funkciók
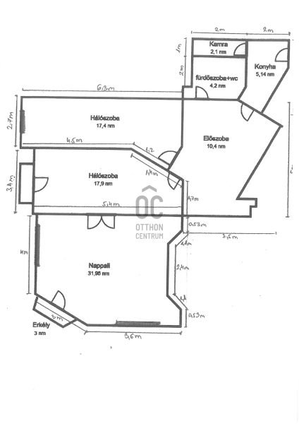
Eladó lakás Budapest XI. Lágymányos 79..
1111 Budapest
ID: 80309
99 M Ft (1.3 M Ft/m2)
Terület
79 m2
Hálószobák
3
Ingatlan adatok
Típus: Lakás
Terület: 79 m2
Hálószobák: 3
Építés éve: 20+ éve
Ár: 99 000 000 Ft
Ár/m2: 1.3 M Ft/m2
Emelet: Felső szint
Kilátás az ingatlanból: Város
Leírás
Valóban jó helyen van és hatalmas lehetőséget rejt magában ez a lakás.
Amit fontos tudnia, ha a képek és az adatok alapján úgy látja érdemes megnéznünk:
- A ház 1910-ben épül minden varázsával együtt
- Bár mi az első emeleten vagyunk, de lift van.
- 360 cm-es belmagassága nem csak a nagy tereket hanem a galéria lehetőségét is biztosítja
- Jelenleg
...
+ Tovább olvasom
Jellemzők
  • Erkély
Lokáció
1111 Budapest