Nyelv:
Kezdd el!
Eladó
Kiadó
Tulajdonos vagyok
Ingatlanos vagyok
Zoomlla-funkciók
Eladó lakás Budapest XIII. Angyalföld ..
1139 Budapest
ID: 79950
89.9 M Ft (2 M Ft/m2)
Terület
44 m2
Hálószobák
2
Ingatlan adatok
Típus: Lakás
Terület: 44 m2
Hálószobák: 2
Építés éve: Max. 5 éve
Ár: 89 900 000 Ft
Ár/m2: 2 M Ft/m2
Emelet: Felső szint
Kilátás az ingatlanból: Város
Leírás
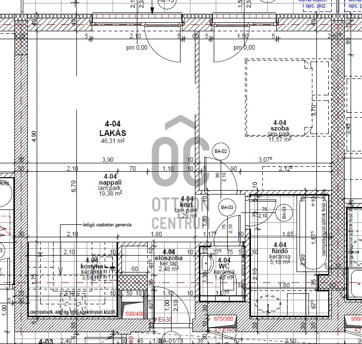
Eladásra kínálunk egy újszerű, 46,3 m²-es, AA++ energetikai besorolású lakást egy 2021-ben épült társasházban. Az ingatlan első tulajdonostól eladó, modern berendezéssel és praktikus elrendezéssel.

Főbb jellemzők:
Amerikai konyhás nappali + hálószoba
Déli tájolás, világos, napfényes terek
7 m²-es erkély belső udvarra néző kilátással
Mennyezeti hűt
...
+ Tovább olvasom
Jellemzők
  • Erkély
Lokáció
1139 Budapest