Nyelv:
Kezdd el!
Eladó
Kiadó
Tulajdonos vagyok
Ingatlanos vagyok
Zoomlla-funkciók
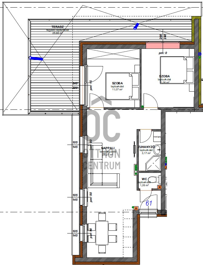
Eladó lakás Fonyód 55m2
8640 Fonyód
ID: 79876
88 M Ft (1.6 M Ft/m2)
Terület
55 m2
Hálószobák
3
Ingatlan adatok
Típus: Lakás
Terület: 55 m2
Hálószobák: 3
Építés éve: Max. 5 éve
Ár: 87 958 000 Ft
Ár/m2: 1.6 M Ft/m2
Emelet: Felső szint
Kilátás az ingatlanból: Város
Leírás
Köszöntöm kedves érdeklődőt, aki az ingatlanpiac legújabb ajánlatait böngészi!

Szeretném figyelmébe ajánlani a legfrissebb eladó ingatlanunkat, mely egy vadonatúj lakás Fonyódon. Az ingatlan Somogy vármegyében fekszik, ahol a gyönyörű Balaton-parti város, Fonyód várja az új tulajdonosokat. A környék csendes és biztonságos, így ideális választás bá
...
+ Tovább olvasom
Lokáció
8640 Fonyód