Nyelv:
Kezdd el!
Eladó
Kiadó
Tulajdonos vagyok
Ingatlanos vagyok
Zoomlla-funkciók
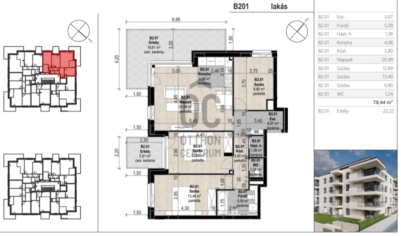
Eladó lakás Budapest XIV. Herminamező ..
1145 Budapest
ID: 79805
137 M Ft (1.8 M Ft/m2)
Terület
78 m2
Hálószobák
4
Ingatlan adatok
Típus: Lakás
Terület: 78 m2
Hálószobák: 4
Építés éve: Max. 5 éve
Ár: 137 011 500 Ft
Ár/m2: 1.8 M Ft/m2
Emelet: Felső szint
Kilátás az ingatlanból: Park
Leírás
Igényes otthonok Zuglóban
Zugló új városnegyedének központjában kimagasló műszaki felszereltséggel rendelkező lakások!
A társasház 2 épületből áll, 22 + 22 lakásból. Kis létszámának köszönhetően nagyon családias és kellemes. A lakásokhoz mélygarázsban elhelyezett tárolók és parkolóhelyek tartoznak.

- liftes társasház 2. emeletén 4 szobás ingatlan
...
+ Tovább olvasom
Lokáció
1145 Budapest