Nyelv:
Kezdd el!
Eladó
Kiadó
Tulajdonos vagyok
Ingatlanos vagyok
Zoomlla-funkciók
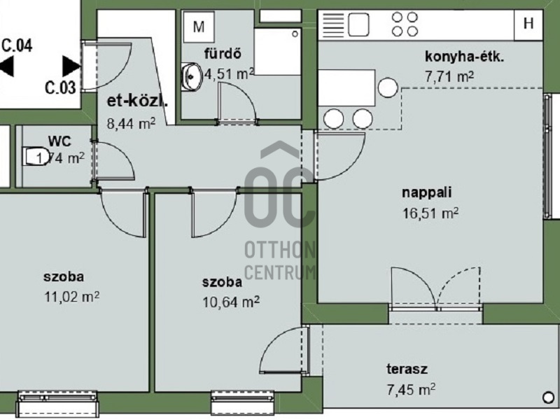
Eladó lakás Pécs Kertváros 61m2
7631 Pécs
ID: 79654
65 M Ft (1.1 M Ft/m2)
Terület
61 m2
Hálószobák
3
Ingatlan adatok
Típus: Lakás
Terület: 61 m2
Hálószobák: 3
Építés éve: Max. 5 éve
Ár: 64 997 950 Ft
Ár/m2: 1.1 M Ft/m2
Emelet: 1+ emelet
Kilátás az ingatlanból: Belső udvar
Leírás
Délkelet tájolású földszinti nappali és 2 hálószobás lakás. A lakáshoz tartozik 195 nm saját használatú kertrész.
Projekt bemutatása

Ez a KIVÉTELES elhelyezkedésű projekt a Dél-Pécs városrész közkedvelt zöldövezetében található.

Élvezze a városi élet kényelmét és a természet nyugalmát egy helyen!

A harmadik, „C” ütem keretében egy impozáns, fö
...
+ Tovább olvasom
Lokáció
7631 Pécs