Nyelv:
Kezdd el!
Eladó
Kiadó
Tulajdonos vagyok
Ingatlanos vagyok
Zoomlla-funkciók
Eladó lakás Budapest VIII. Corvin negy..
1089 Budapest
ID: 79566
96.9 M Ft (1.7 M Ft/m2)
Terület
58 m2
Hálószobák
2
Ingatlan adatok
Típus: Lakás
Terület: 58 m2
Hálószobák: 2
Építés éve: Max. 5 éve
Ár: 96 900 000 Ft
Ár/m2: 1.7 M Ft/m2
Emelet: Felső szint
Kilátás az ingatlanból: Park
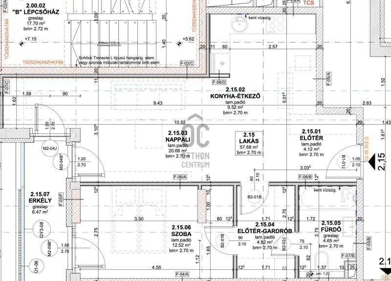
Leírás
A lakás csendes, belső kertre néz, 2. emeleti, Ny-i tájolású. A vételár teljes bútorozást tartalmaz: Gépesített konyhabútor, előszoba szekrény, tükör, nappaliban tv szekrény, gardrób, hálószobában ágy és matrac. Továbbá függönyözés és megtörtént. Hamarosan belső képekkel.
Projekt bemutatása

AZONNAL költözhető, új lakások tetőtéri wellness-részlegg
...
+ Tovább olvasom
Lokáció
1089 Budapest