Nyelv:
Kezdd el!
Eladó
Kiadó
Tulajdonos vagyok
Ingatlanos vagyok
Zoomlla-funkciók
Eladó lakás Budapest IV. Újpest 84m2
1047 Budapest
ID: 79223
189.9 M Ft (2.3 M Ft/m2)
Terület
84 m2
Hálószobák
4
Ingatlan adatok
Típus: Lakás
Terület: 84 m2
Hálószobák: 4
Építés éve: Max. 5 éve
Ár: 189 900 000 Ft
Ár/m2: 2.3 M Ft/m2
Emelet: Felső szint
Kilátás az ingatlanból: Város
Leírás
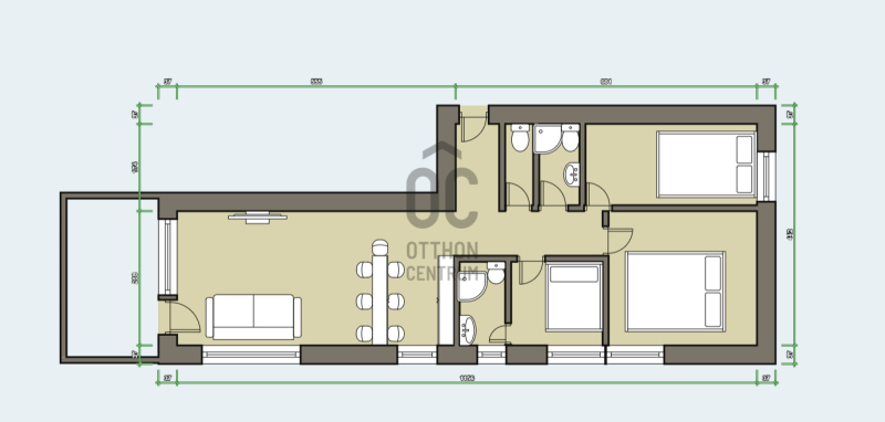
Eladó a IV. kerületben a Metrodom Panoráma Társasházban egy újszerű 8.emeleti 4 szobás, panorámás otthon!

LAKÁS:
Az ingatlan nettó 84nm alapterületű. Helyiségei: előszoba, nappali-konyha-étkező, 3 hálószoba, 2 fürdőszoba-WC, külön WC. A nappaliból kijuthatunk a 16nm-es teraszra, ahonnan dunai panoráma tárul elénk. Az ingatlan magas minőségű bútor
...
+ Tovább olvasom
Lokáció
1047 Budapest