Nyelv:
Kezdd el!
Eladó
Kiadó
Tulajdonos vagyok
Ingatlanos vagyok
Zoomlla-funkciók
Eladó ház Hatvan 0m2
3000 Hatvan
ID: 78791
5 M Ft (-)
Terület
0 m2
Hálószobák
0
Ingatlan adatok
Típus:
Terület: 0 m2
Hálószobák: 0
Építés éve: 20+ éve
Ár: 5 000 000 Ft
Ár/m2: -
Emelet: Felső szint
Leírás
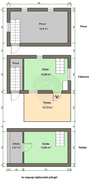
*** Eladó 2400 m2-es külterületi telek egy 3 szintes gazdasági épülettel együtt! ***

Hatvan, külterületén a Kóczos Kertsoron eladó egy 2400 m2-es telek, amely gazdálkodásra alkalmas. Nagy ELŐNYE, hogy termő cseresznyefa, meggyfa, szilvafa, almafa és körtefa is megtalálható a kertben, ezeken kívül sok akácfa lett elültetve pár éve. A telken egy TÉG
...
+ Tovább olvasom
Lokáció
3000 Hatvan