Nyelv:
Kezdd el!
Eladó
Kiadó
Tulajdonos vagyok
Ingatlanos vagyok
Zoomlla-funkciók
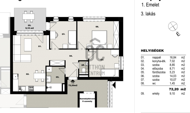
Eladó lakás Debrecen 72m2
4030 Debrecen
ID: 78487
115 M Ft (1.6 M Ft/m2)
Terület
72 m2
Hálószobák
4
Ingatlan adatok
Típus: Lakás
Terület: 72 m2
Hálószobák: 4
Építés éve: Max. 5 éve
Ár: 115 000 000 Ft
Ár/m2: 1.6 M Ft/m2
Emelet: Felső szint
Kilátás az ingatlanból: Belső udvar
Leírás
Ez az ingatlan az 1. emeleten található.
Projekt bemutatása

Debrecen kedvelt városrészén, Nyulason , annak is egy már szép, beépített utcájában újépítésű társasházban lakások leköthetőek.
Az ingatlan luxus kivitelezésben készül, minden igény kielégítése a fő cél.
Műszaki jellemzői : - liftes társasház, - pototherm 30 NF fal, 15 cm szigeteléssel,
...
+ Tovább olvasom
Jellemzők
  • Erkély
Lokáció
4030 Debrecen