Nyelv:
Kezdd el!
Eladó
Kiadó
Tulajdonos vagyok
Ingatlanos vagyok
Zoomlla-funkciók
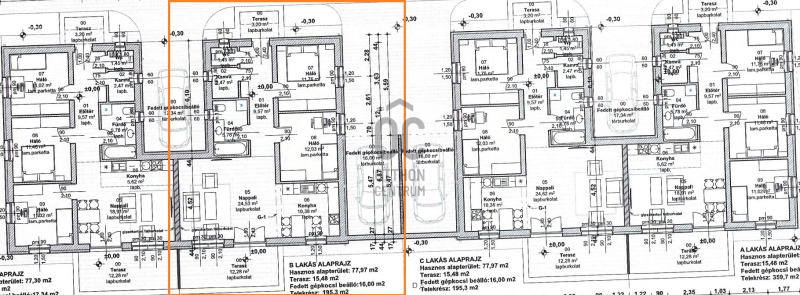
Eladó ház Kiskunlacháza 78m2
2340 Kiskunlacháza
ID: 78278
58.5 M Ft (334 E Ft/m2)
Terület
175 m2
Hálószobák
3
Ingatlan adatok
Típus: Ház
Terület: 78 m2
Erkély / Terasz területe: 194 m2
Hálószobák: 3
Építés éve: Max. 5 éve
Ár: 58 500 000 Ft
Ár/m2: 334 E Ft/m2
Emelet: 1+ emelet
Leírás
Projekt bemutatása

AKCIÓS Kiskunlacháza újépítésű sorházi lakások

Különböző méretű 4 lakásos sorházi lakások eladóak hőszivattyús padlófűtéssel.
Nappali + 2 vagy nappali +3 hálószobás variácók. Gépkocsibelló.
Telek méretek: 180-400 m2 között.

Aszfaltos utca, jó helyen, közel a központhoz.

Azonnal költözhető!

---
További informáci
...
+ Tovább olvasom
Lokáció
2340 Kiskunlacháza