Nyelv:
Kezdd el!
Eladó
Kiadó
Tulajdonos vagyok
Ingatlanos vagyok
Zoomlla-funkciók
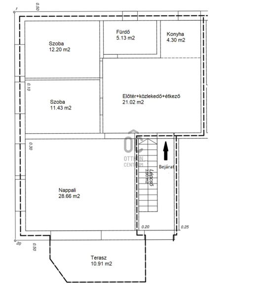
Eladó lakás Siófok 89m2
8600 Siófok
ID: 78241
92.9 M Ft (1 M Ft/m2)
Terület
89 m2
Hálószobák
3
Ingatlan adatok
Típus: Lakás
Terület: 89 m2
Hálószobák: 3
Építés éve: Max. 5 éve
Ár: 92 900 000 Ft
Ár/m2: 1 M Ft/m2
Emelet: 1+ emelet
Kilátás az ingatlanból: Park
Leírás
Ha egy modern, exkluzív otthont keresel, amely tökéletesen illeszkedik a mai kor igényeihez, akkor ezt a kiváló állapotú, 88,5 nm-es lakást Siófok Fokihegy városrészében nem hagyhatod ki!
Ez a tágas, 3 szobás lakás egy igazi gyöngyszem, ahol a minimalista kialakítás és a prémium kivitelezés találkozik. Az újépítésű lakáspiacon RITKÁN alkalmazott,
...
+ Tovább olvasom
Lokáció
8600 Siófok