Nyelv:
Kezdd el!
Eladó
Kiadó
Tulajdonos vagyok
Ingatlanos vagyok
Zoomlla-funkciók
Eladó ház Balatonföldvár 700m2
8623 Balatonföldvár
ID: 78216
184.5 M Ft (264 E Ft/m2)
Terület
700 m2
Hálószobák
0
Ingatlan adatok
Típus:
Terület: 700 m2
Hálószobák: 0
Építés éve: 20+ éve
Ár: 184 500 000 Ft
Ár/m2: 264 E Ft/m2
Emelet: Felső szint
Leírás
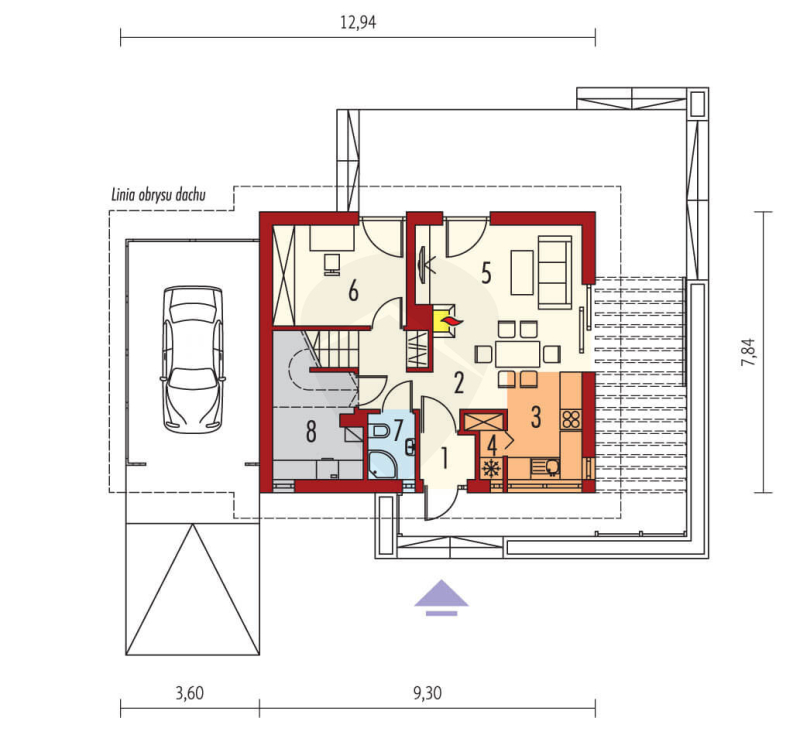
PRÉMIUM MINŐSÉGŰ ÚJ ÉPÍTÉSŰ CSALÁDI HÁZ!!!!!!!

Balatonföldvár csendes részén kínáljuk eladásra ezt az exkluzív, modern kialakítású, új építésű lakóingatlant, amely tökéletes választás lehet családok, párok vagy első lakásvásárlók számára.

A 89,79 m² alapterületű ingatlan gondosan megtervezett elrendezése öt szobát foglal magában, így biztosítva a
...
+ Tovább olvasom
Lokáció
8623 Balatonföldvár