Nyelv:
Kezdd el!
Eladó
Kiadó
Tulajdonos vagyok
Ingatlanos vagyok
Zoomlla-funkciók
Eladó lakás Debrecen Belváros 60m2
4028 Debrecen
ID: 78036
79.9 M Ft (1.3 M Ft/m2)
Terület
60 m2
Hálószobák
3
Ingatlan adatok
Típus: Lakás
Terület: 60 m2
Hálószobák: 3
Építés éve: Max. 20 éve
Ár: 79 900 000 Ft
Ár/m2: 1.3 M Ft/m2
Emelet: Felső szint
Kilátás az ingatlanból: Város
Leírás
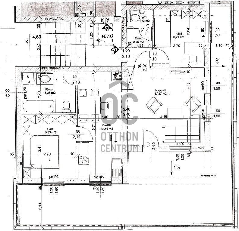
Eladó Debrecen egyik frekventált helyén a DE Műszaki kar közelében, csendes utcában egy majdnem 60 nm-es, penthouse jellegű lakás, nagy 43 nm-es tetőterasszal.

A Lakásról:
A lakás 59,69 nm alapterületű, három szobával (2 szoba + nappali) rendelkezik, amelyek világos, jó elosztású tereket kínálnak. A fényes déli és nyugati tájolású nappaliból kilép
...
+ Tovább olvasom
Lokáció
4028 Debrecen