Nyelv:
Kezdd el!
Eladó
Kiadó
Tulajdonos vagyok
Ingatlanos vagyok
Zoomlla-funkciók
Eladó lakás Budapest VIII. Corvin negy..
1089 Budapest
ID: 76164
109.9 M Ft (1.6 M Ft/m2)
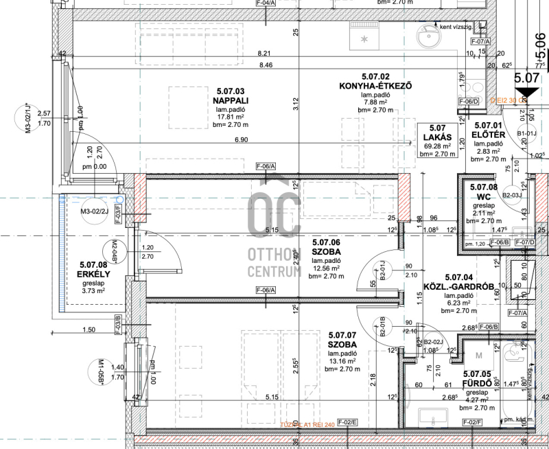
Terület
69 m2
Hálószobák
3
Ingatlan adatok
Típus: Lakás
Terület: 69 m2
Hálószobák: 3
Építés éve: Max. 5 éve
Ár: 109 900 000 Ft
Ár/m2: 1.6 M Ft/m2
Emelet: Felső szint
Kilátás az ingatlanból: Város
Leírás
Egy modern, belvárosi lakás, amely a kényelmet és a luxust ötvözi. Tetőtéri medence, jacuzzi, szauna – minden egy karnyújtásnyira, 2 emelettel feljebb. Legyen szó egy fárasztó nap utáni lazításról vagy egy hétvégi kikapcsolódásról, minden készen áll, hogy feltöltődj. Mindez egy lépésre az otthonodtól. Üdv Itthon!

A LAKÁS
Elhelyezkedés: Budapest VI
...
+ Tovább olvasom
Lokáció
1089 Budapest