Nyelv:
Kezdd el!
Eladó
Kiadó
Tulajdonos vagyok
Ingatlanos vagyok
Zoomlla-funkciók
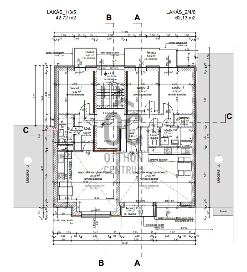
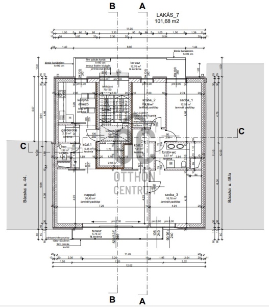
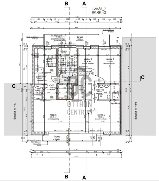
Eladó lakás Budapest XIV. 102m2
1145 Budapest
ID: 76163
188.6 M Ft (1.8 M Ft/m2)
Terület
102 m2
Hálószobák
4
Ingatlan adatok
Típus: Lakás
Terület: 102 m2
Hálószobák: 4
Építés éve: Max. 5 éve
Ár: 188 547 000 Ft
Ár/m2: 1.8 M Ft/m2
Emelet: Felső szint
Kilátás az ingatlanból: Város
Leírás
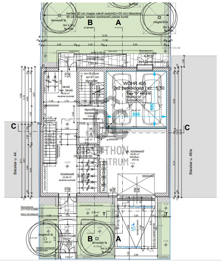
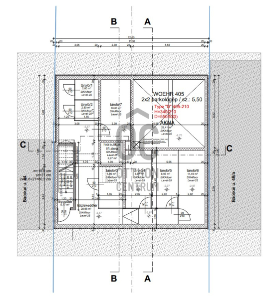
Herminamező (Budapest XIV. kerület, Zugló) zöldövezeti központjában, csodás, ősfás környezetben KIS LAKÁSSZÁMÚ társasházban kínálok eladásra egy amerikai konyhás nappali + 3 hálószobás TERASZOS és ERKÉLYES, legfelső emeleti lakást most épülő társasházban, magas műszaki tartalommal.

Az épületet csendes, szinte forgalommentes, egyirányú utcában alak
...
+ Tovább olvasom
Jellemzők
  • Erkély
Lokáció
1145 Budapest