Nyelv:
Kezdd el!
Eladó
Kiadó
Tulajdonos vagyok
Ingatlanos vagyok
Zoomlla-funkciók
Eladó ház Őrbottyán 74m2
2162 Őrbottyán
ID: 75887
69.9 M Ft (242 E Ft/m2)
Terület
289 m2
Hálószobák
4
Ingatlan adatok
Típus: Ház
Terület: 74 m2
Erkély / Terasz területe: 429 m2
Hálószobák: 4
Építés éve: Max. 5 éve
Ár: 69 900 000 Ft
Ár/m2: 242 E Ft/m2
Emelet: 1+ emelet
Leírás
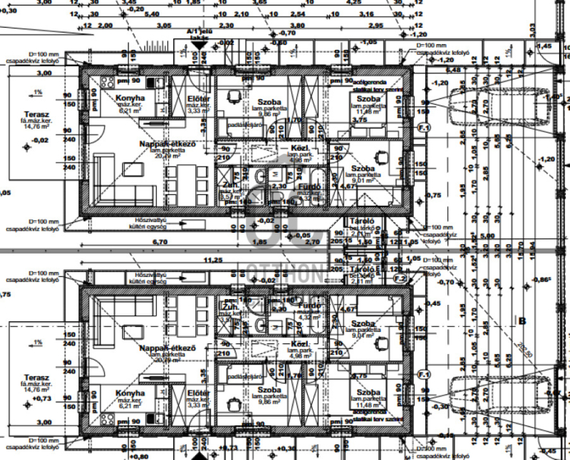
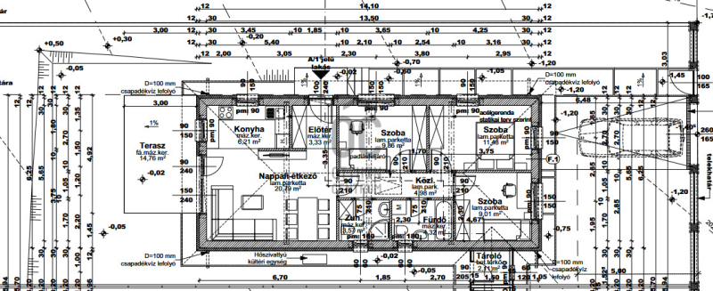
Őrbottyánban, új építésű házakat kínálunk eladásra.
Az ikerházak csak a 2,11 nm-es tárolónál kapcsolódnak egymáshoz.

Egy 858 nm-es telek lett egyenlő arányban megosztva.
A hirdetés a bal oldali ikerház félre vonatkozik.

A ház nettó hasznos alapterülete 73,55 nm+2.11 nm tároló+14,76 nm terasz.
Az épületben egy amerikai konyhás nappali, három hálós
...
+ Tovább olvasom
Lokáció
2162 Őrbottyán