Nyelv:
Kezdd el!
Eladó
Kiadó
Tulajdonos vagyok
Ingatlanos vagyok
Zoomlla-funkciók
Eladó lakás Hatvan 55m2
3000 Hatvan
ID: 74079
30 M Ft (545 E Ft/m2)
Terület
55 m2
Hálószobák
2
Ingatlan adatok
Típus: Lakás
Terület: 55 m2
Hálószobák: 2
Építés éve: 20+ éve
Ár: 30 000 000 Ft
Ár/m2: 545 E Ft/m2
Emelet: Felső szint
Kilátás az ingatlanból: Város
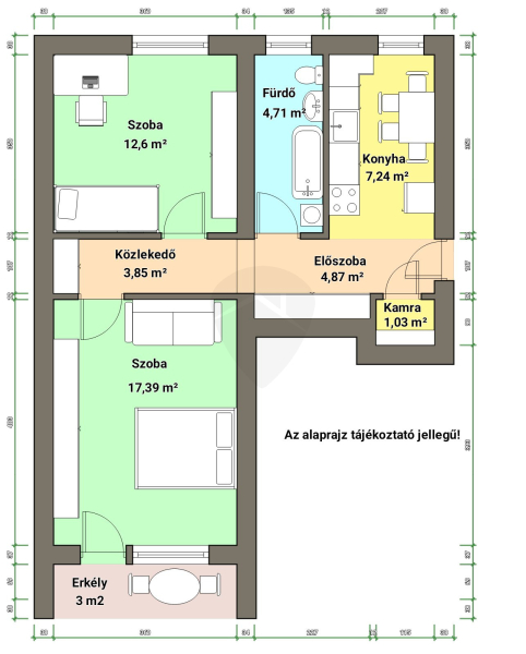
Leírás
Fektess be egy olyan ingatlanba, amely nemcsak az otthonod lehet, hanem egy jövedelmező befektetés is!

A Heves vármegyei Hatvan városában, a Gódor Kálmán utcában kínálunk eladásra egy 2. emeleti erkélyes lakást. Az ingatlan alapterülete 55 nm, melyben két szoba és egy konyha, kamra, fürdőszoba és előszoba található. A közepes állapotú lakás VILÁG
...
+ Tovább olvasom
Lokáció
3000 Hatvan